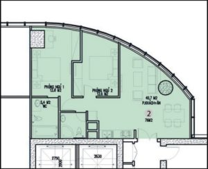
căn 2 76m2 tầng 7-16 chung cư eurowindow 26/03/2018 214 Lượt Xem 2018-03-26 hanhbds.pt@gmail.com Chia Sẻ tweet