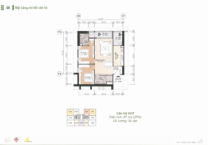
căn 7+10 chung cư A10 Nam Trung Yên 04/12/2017 285 Lượt Xem 2017-12-04 hanhbds.pt@gmail.com Chia Sẻ tweet